One-bedroom apartments on the Paceville site where the Avenue restaurant once stood are being sold on plan starting from €328,000, with penthouse prices reaching €450,000 – despite having no permit.

The site in question gained national attention last summer after an apartment block adjacent to the site collapsed just hours after the Building and Construction Authority (BCA) ordered its evacuation due to structural concerns. No injuries were reported, though residents later complained about severe disruption in the busy Paceville streets.

The collapsed block, known as Tania Flats, sits next to an active construction site managed by Excel Developments, a company owned by Gozitan developer Joseph Portelli, alongside executive directors Mark Agius known as Ta’ Dirjanu and Daniel Refalo, who also owns DTX Properties.

The new units are being sold in shell form, with construction projected to be completed by March 2027, and finishing works scheduled for completion by December 2027.

Buyers are required to pay a 20 per cent deposit upon signing the promise of sale agreement, with the remaining 80 per cent due once the ceiling of the purchased unit’s floor is completed. The first-floor units have reportedly already been sold, while second-floor apartments begin at €328,000.

Despite the active sales campaign, the current approved permit, PA/02173/21, only authorises demolition and excavation works and the construction of a 125-room, nine-storey hotel with 65 underground parking spaces. Following last June’s collapse, the BCA issued a stop-work order on the Excel Developments site.

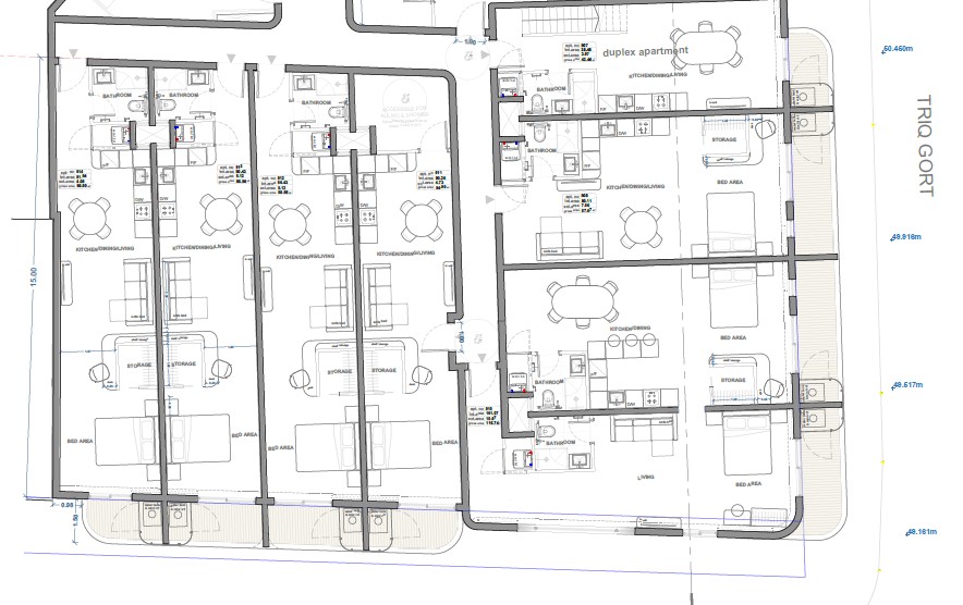
In 2024, before the collapse, the developers filed a new permit application, PA/08426/24, seeking approval to construct 73 apartments from level one upward, 75 underground parking spaces, and two Class 4D commercial outlets at ground floor level, as well as a communal rooftop pool.

The permit has not yet been approved, and while selling apartments on plan is not illegal, it places significant pressure on buyers, who are required to fork out a 20 per cent deposit – roughly €66,000 for a one-bedroom studio on the second floor – on a development that still lacks planning approval.

Read Next: Placeholder

Written By

Adel Montanaro

Adel Montanaro is a storyteller at heart, combining a journalist’s curiosity with a deep love for music and creativity. When she’s not chasing the next great story, you’ll find her at a local gig, brainstorming fresh ideas, or surrounded by her favourite people and pets.